Quadrilocale in vendita

Melito Di Napoli, Via Guido Picelli
€ 145.000
4 locali 4 locali
155 Mq 155 Mq
3 bagni 3 bagni

Quadrilocale in vendita

Melito Di Napoli, Via Guido Picelli

Descrizione annuncio

Via Guido Picelli – Melito di Napoli

A pochi passi dal corso principale di Melito, proponiamo in vendita un appartamento spazioso e ben distribuito situato al secondo piano di un mini condominio ben tenuto.

L’immobile si distingue per la disposizione funzionale degli ambienti e per la luminosità che lo caratterizza in ogni ora del giorno.

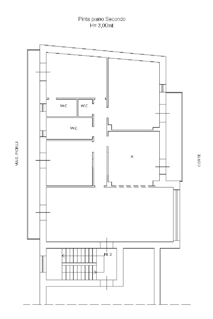
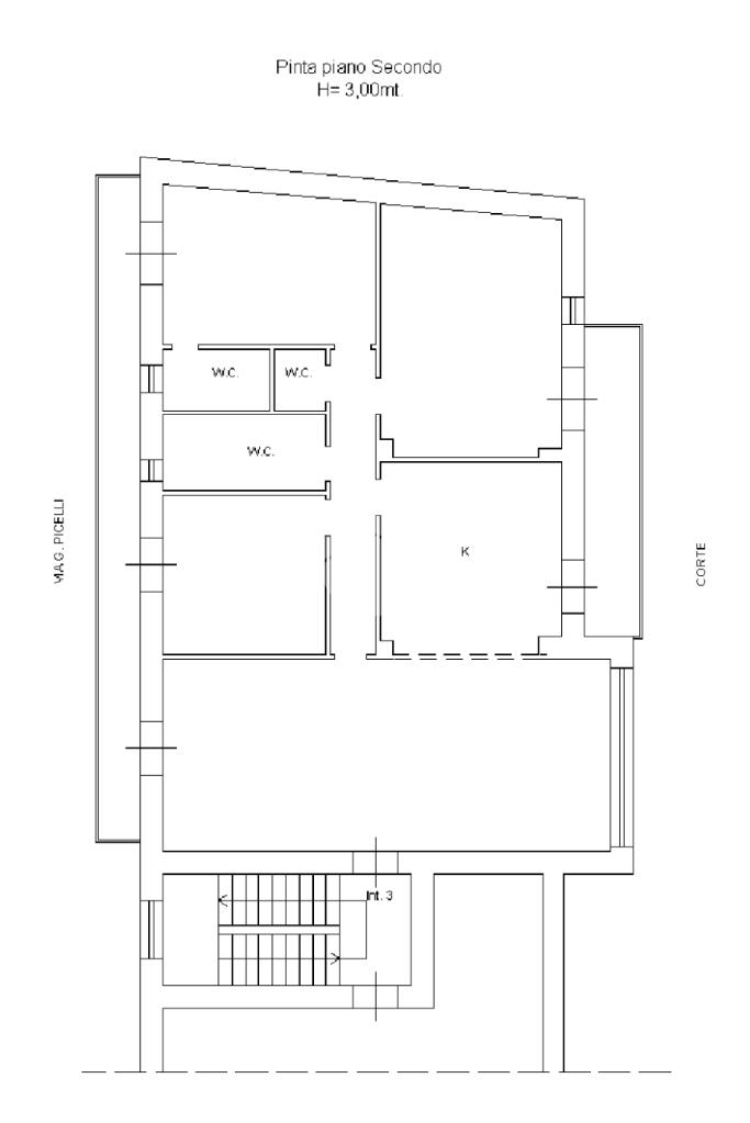
L’ingresso si apre su un ampio salone, accogliente e ben proporzionato, ideale per la zona living e relax. A seguire troviamo la cucina, comoda e separata, perfetta per accogliere pranzi in famiglia o momenti conviviali.

Un corridoio centrale conduce alla zona notte, composta da quattro camere da letto, con potenziale di 5 vani complessivi, perfette per famiglie numerose o per chi desidera ampi spazi da adibire anche a studio o camera ospiti.


I tre bagni sono ben distribuiti all’interno della zona notte: uno principale con finestra, uno cieco interno alla camera padronale utilizzabile come bagno privato, e un terzo bagno di servizio, sempre situato nella zona notte, a supporto delle altre camere.


La posizione strategica, a ridosso del corso principale di Via Roma e con tutti i servizi a portata di mano, tra cui negozi, scuole e mezzi pubblici, lo rende l’immobile ideale


Per maggiori informazioni o per prenotare una visita, non esitare a contattarci al numero 081 9762577.

Mostra tutto

Nelle vicinanze

Trasporto pubblico Trasporto pubblico
Mugnano
Mugnano
1,5 Km
Giugliano
Giugliano
1,7 Km
Trasporto pubblico
1,2 Km
Piazza Tafuri - Via Plebiscito
Piazza Tafuri - Via Plebiscito
2,9 Km
Ricariche auto elettriche Ricariche auto elettriche
Brasiello Carservice | EnelX
2,4 Km
Scuole Scuole
Scuole
830 m
Istituto Comprensivo Statale Marconi - Torricelli
1,6 Km
Liceo Statale Laura Bassi
1,7 Km
Istituto Comprensivo Ilaria Alpi - Carlo Levi
1,8 Km
Istituto Comprensivo Statale Marconi - Torricelli Plesso Don Bosco
2,0 Km
Farmacia Farmacia
San Biagio
1,9 Km
Farmacia Vivo
1,9 Km
Farmacia
2,2 Km
Paloschi
2,2 Km
Farmacia D'Amore
2,3 Km
Ospedali Ospedali
Distretto Sanitario
2,4 Km
San Giuliano
3,0 Km
Supermercati Supermercati
Supermercati
640 m
EnneSì
990 m
Lidl
1,0 Km
Conad Superstore
1,4 Km
SISA Vergara
1,9 Km
Negozi Negozi
Exploit
730 m
OVS
1,5 Km
Outfit
1,7 Km
Negozi
1,8 Km
Pancas
1,8 Km
Bar Bar
Bar
450 m
Bar Paradise
730 m
Bar Alexander
790 m
Bar Signorelli
900 m
Blue Moon Cafè
1,5 Km
Ristoranti Ristoranti
Ristoranti
1,0 Km
Leone RistoBracePizza
1,4 Km
Il Rusticone
1,5 Km
Freedom
1,7 Km
Carmine Donzetti
1,9 Km
Mostra tutto

Caratteristiche

Rif.:
61136696
Piano:
2 di 3 (Piano medio)
Balconi:
2
Camere da letto:
1
Arredamento:
Assente
Condizionamento:
Autonomo
Mostra tutto
Prezzo Prezzo
€ 145.000
Rata mutuo Rata mutuo
€ 686 / mese
Spese annue Spese annue
€ 0
Proponi il tuo prezzoProponi il tuo prezzo

Classe Energetica

G
G
G
G
G
G
G
G
G
Anno di costruzione:
1950
Riscaldamento:
Autonomo
Tipo impianto:
A radiatori
Tipo alimentazione:
Metano

Ti interessa visionare l'immobile?

Fissa un appuntamento  Fissa un appuntamento

Richiedi informazioni

Clicca su Leggi per aprire l'informativa
* Questi campi sono obbligatori

Calcola il tuo mutuo

Semplice e senza impegno
Anticipo

( % )
Mutuo

( % )

pochi semplici passi

inserisci i tuoi dati
Questionario completato
Grazie per aver richiesto un appuntamento senza impegno con un nostro Consulente del Credito e Assicurativo.

Hai inserito correttamente tutti i dati necessari e a breve riceverai una e-mail con un link da convalidare per inviare i tuoi dati.
Affiliato
Reteimmobiliare Melito Srl
Via Roma, 471 80017 Melito Di Napoli (NA)

Il nostro staff


  • Valentina Addante
    Affiliata

  • Ivan Foresta
    Affiliato

  • Emanuela Marrone
    Collaboratrice
Via Roma, 471 80017 Melito Di Napoli (NA)
Zona: Melito
Mostra su mappa
Orari: dal Lunedì al Venerdì 09:00-13:00/15:30-20:00. Sabato 09:00-14:00
Affiliato
Reteimmobiliare Melito Srl
Via Roma, 471 80017 Melito Di Napoli (NA)

2026 Tecnocasa Franchising S.p.A. - P. IVA 08365160152 - Via Monte Bianco 60/A 20089 Rozzano (MI). Ogni agenzia ha un proprio titolare ed è autonoma. Privacy policy | Policy utilizzo | Cookie policy